



1108-1120 E Lake Street
Minneapolis, MN 55407
Price
$2,599,000
MLS #
7042685
Status
Active
Built in 1911
Hennepin County
Description
This is part of a portfolio package including the following properties:
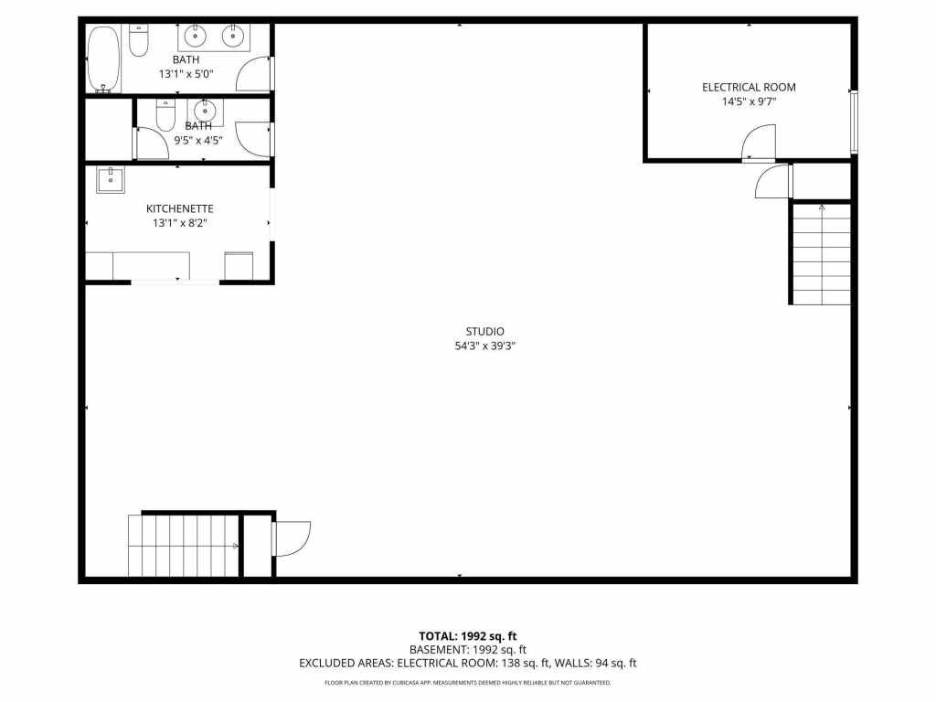
1108 E Lake St : 5,250 SF
1112 E Lake St: 2,721 SF
• Redevelopment opportunities for affordable
housing. Development application is underway
and pending to be approved from various
government agencies.
• Commercial Mixed Use, Office spaces, Retail
spaces and more
• 3 parcels , two buildings and parking lot!
School District
Minneapolis
2025 Property Taxes
$20,758
Directions
Lot 012,013,014 block 001 allan and anderson's 2nd add to mpls
Zoning
Business/Commercial Zone
Features
Utilities
Electric Common,Heating Common,Hot Water Common
Cooling
Central Air
Heating
Forced Air
Sewer
City Sewer/Connected
Water
Public
Additional Info
Listed By
Mohamed Abdulle of Northstar Real Estate Associates
Listed
03/25/26 and last updated 03/25/26
Based on information submitted to the MLS GRID or Trestle as of DATE and TIME. All data is obtained from various sources and may not have been verified by the broker, MLS GRID, or Trestle. All information should be independently reviewed and verified for accuracy. Properties may or may not be listed by the office/agent presenting the information. Some IDX listings have been excluded from this website. IDX information is provided exclusively for personal, non-commercial use and may not be used for any purpose other than to identify prospective properties consumers may be interested in purchasing. Information is deemed reliable but not guaranteed.
Calculate Your Monthly Payments
Taxes:
Estimated Payment:
$0
Total Interest:
$0
Total Amount:
$0





















































